Udvidelse af dit byggeri
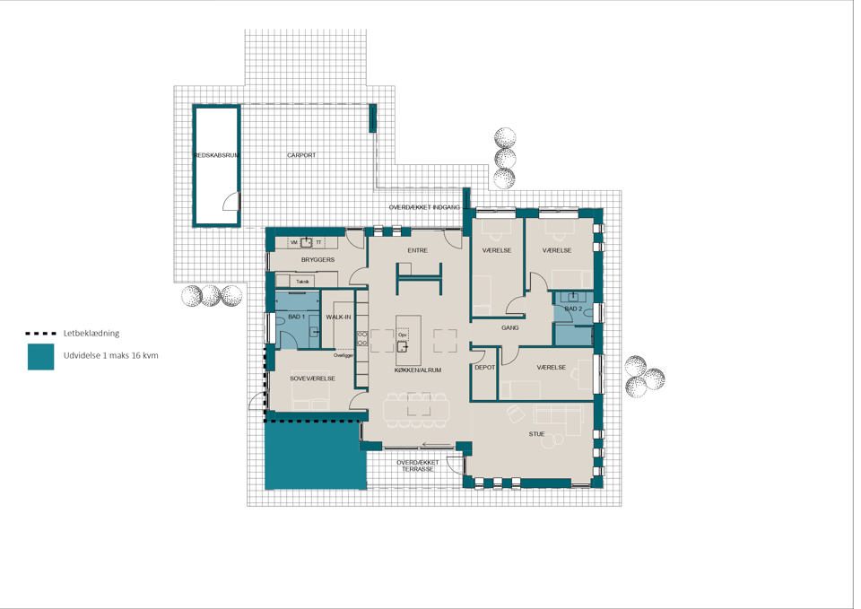
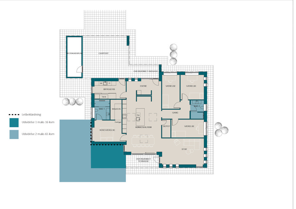
Skulle du som nybygger få behov for flere kvadratmeter senere i livet, er huset forberedt, da tagkonstruktionen går ud over beboelsesarealet. Det kan således ændres fra at have funktion som overdækning af en terrasse til at huse en egentlig tilbygning.
Forberedelsen fra projekteringsfasen sparer husets ejere både tid og penge den dag, de ønsker at lave en tilbygning. Dørene er fx placeret, så de nemt kan udskiftes og hurtigt kan ændre funktion fra terrassedøre til indvendige døre. Samtidig er væggene opført i let beklædning frem for tegl, så de er nemmere at nedbryde ved en eventuel tilbygning.
Den gennemtænkte tegning tager højde for mulige fremtidsscenarier allerede ved husets fødsel. Som nybygger hos Milton Huse har du mulighed for at indtænke de bedste løsninger for dig og din familie i samspil med en specialist fra teamet af byggerådgivere.

Eksempel 1

Eksempel 2
Vil du høre mere om ansvarligt husbyggeri?
Kontakt os for at høre mere om dine muligheder.


