Hent pdf

Annevej 12, 5792 Årslev

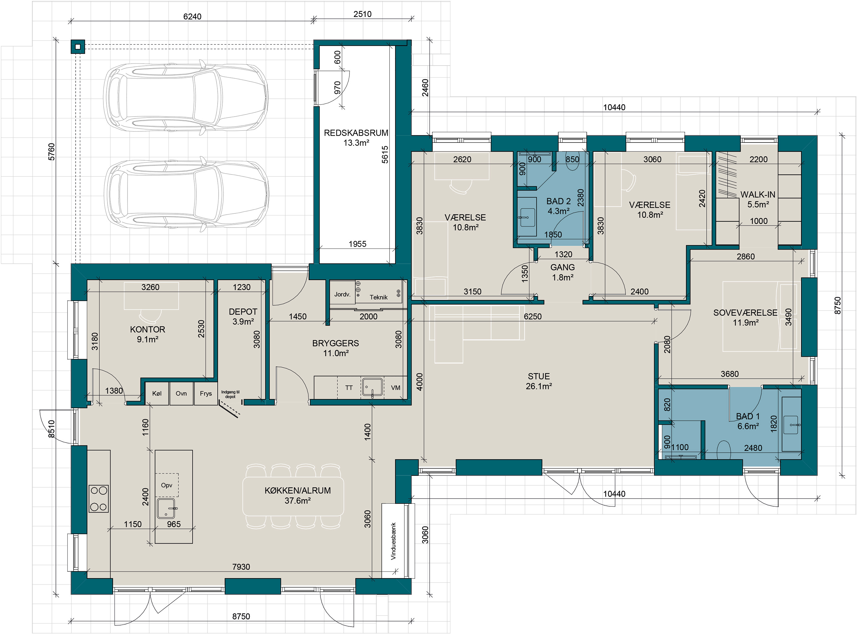
Familievilla med mange muligheder

167 boligkvadratmeter med maksimal funktionalitet og minimal spildplads. 

Formmæssigt er der tale om et forskudt vinkelhus med valmtag og udhæng, en integreret carport og et redskabsrum med muret søjle. Facaden er beklædt med Taurus Massiv.

Indenfor er entré og bryggers samlet i én rummelig løsning, så hverdagen bliver nem. Indkøbene ryger hurtigt videre til køkken-alrummet lige inden for døren. Køkkenet er indrettet med fritstående ø og et skjult depotrum integreret i skabsvæggen, så du får masser af opbevaring uden rod. Herfra er der også adgang til et kontor – perfekt til hjemmearbejde med kaffemaskinen tæt på. Har du brug for en slapper kan du tage plads ved sansevinduet i hjørnet af alrummet, hvor du fra den indbyggede bænk kan sidde og betragte livet i både huset og haven. 

Fra køkken-alrummet træder du to trin ned i en hyggelig stue med et stort ovenlysvindue over sofasektionen. I denne del af boligen er loftshøjden ca. 275 cm, mens alrummet har skrå lofter. Den ekstra loftshøjde får selv mindre værelser til at føles markant større. Ligesom alrummet fungerer stuen fordelingspunkt til værelserne, hvilket minimerer gangarealer til fordel for opholdsplads, du faktisk bruger. Her ligger to gode børneværelser med eget badeværelse samt en forældreafdeling med walk-in og badeværelse med udgang til haven.

Huset er opført som et et lavenergihus med energimærke A2020, jordvarme og varmegenvinding, som holder komforten høj og varmeregningen lav.

Åbent hus på søndag kl. 13-15

Huset er til salg for 4.295.000 kr.

Fakta

  • Forskudt vinkelhus
  • Valmtag med 30 cm udhæng
  • Boligareal: 167 kvm
  • Grund: 796 kvm
  • Carport: 36 kvm
  • Mursten: EW2546 Taurus
  • Tagbeklædning: Sorte betontagsten
  • Vinduer: Rationel Auraplus Premium træ/alu
  • Vægge: Filt
  • Gulve: Akustik Designkork Neveda Oak m. TimperPro
  • Walk-in
  • Ovenlysvinduer
  • Opvarmning: Jordvarme

30 billeder

Oplev vores udstillingshuse i weekenden

Og find ud af, hvilke løsninger du ikke kan leve uden i dit næste hus.

Calculator App Streamline Icon: https://streamlinehq.com

Hvad koster det at bygge et nyt hus?

Dit nye hus behøver ikke at koste en bondegård. Hvis du gerne vil have et fingerpeg om prisen, er vores priseksempler en god hjælp. 

Pencil Streamline Icon: https://streamlinehq.com

Sådan tegner vi det rigtige hus til jer

Vi bygger huse hver dag og har gjort det i årevis. Al den erfaring og viden om best practice bringer vi i spil, når vi tegner dit hus. 

Skal vi mødes til en snak om mulighederne?

Så book et uforpligtende møde med en af vores byggerådgivere. Du behøver ikke have styr på det hele endnu. Vi brygger en kop kaffe, taler om jeres ønsker og finder ud af, hvordan Milton kan hjælpe jer med husdrømmen.