
Tilgængelige tagtyper
- Valmtag
- Sadeltag
- Ensidig taghældning
- Fladt tag
Er du interesseret i at vide mere?
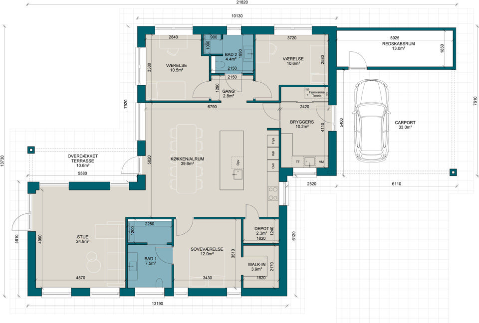
FV156
FV156 | Plantegning til nybyg | Milton Huse

Oplev vores udstillingshuse i weekenden
Og find ud af, hvilke løsninger du ikke kan leve uden i dit næste hus.
Åbent hver søndag
Gå på opdagelse i vores udstillingshuse
Brug kortvisningen nederst på siden til at få et hurtigt overblik over huse i nær dig. Du kan også tjekke vores galleri over tidligere udstillingshuse for mere inspiration.
Påske 2025
Kom til premiere på 3 nye udstillingshuse
Åbent fra skærtorsdag og hele påsken igennem.
Vi er over hele landet
Hvad koster det at bygge et nyt hus?
Dit nye hus behøver ikke at koste en bondegård. Hvis du gerne vil have et fingerpeg om prisen, er vores priseksempler en god hjælp.
Typehus priser
Hvad koster det at bygge et nyt hus?
Vi bliver ofte spurgt, hvad det koster at bygge et hus på X antal kvadratmeter med carport eller garage. Det vil vi meget gerne give dig et bud på; vi skal bare lige vide lidt mere.
Et længehus på 160 kvm kan se ud på tusind forskellige måder, og prisen på et typehus afhænger blandt andet af dine ønsker til materialer, konstruktion og beliggenhed. Derfor kan vi først give et seriøst prisoverslag, når vi har hørt lidt nærmere om dine ønsker til huset. Så ved vi, om det er et hus til 2.500.000 eller 3.500.000.
Vi har lavet seks priseksempler, som giver dig et realistisk fingerpeg om, hvad det koster at bygge et nyt typehus. Så skal du bare lægge prisen på din byggegrund oveni, og så har du en rimelig god idé om det samlede beløb.
Du kan læse mere om, hvordan vi sikrer dig en god pris og en forudsigelig økonomi lige her.
Hvad betyder mest for prisen på et typehus?
Nybyggeri handler som så meget andet om at finde en god balance. Det gælder også i forhold til økonomien. Derfor er det en god idé at gøre op med dig selv og familien, hvad I bare ikke kan undvære. Er det vigtigst med masser af plads? Et helt bestemt æstetisk udtryk på facaden? Et køkken med masser af udstyr? En isoleret garage?
Så bliver det nemmere at vælge undervejs i processen.
Herunder kan du læse om nogle af de beslutninger og tilvalg, som har størst indflydelse på prisen. Så skal vi nok hjælpe jer med at få mest muligt for pengene.
Priseksempler
Vælg landsdel
Priserne varierer mellem Jylland/Fyn og Sjælland. Det skyldes, at udgifter til materialer, jordhåndtering og lønninger generelt er højere øst for Storebælt.





Kvadratmeter
Prisen vokser med antallet af kvadratmeter, men kvadratmeterprisen kan variere alt efter valg af materialer og arkitektur. Tænk over, hvad du har brug for nu – og i fremtiden. Vi skal nok hjælpe dig med at få det maksimale ud af pladsen – nogle gange kræver store idéer færre kvadratmeter, end man skulle tro.
Arkitektur
Jo enklere design, jo billigere, lyder tommelfingerreglen. Vinkler, forskydninger, overdækninger og nicher kan hæve prisen, men giver også arkitektonisk kant og spændende indretningsmuligheder, som øger boligens herlighedsværdi.
Tagløsning
De forskellige tagløsninger varierer i pris. Du sparer fx mest ved at vælge et klassisk valmtag med fald til alle sider, fordi tagmaterialerne er billigere end konstruktion og opmuring af gavle. Du kan også spare penge ved at vælge betontagsten frem for de dyrere teglsten, som omvendt har noget særligt over sig.
Garage eller carport?
Ønsker I jer en isoleret garage eller dækker en carport med redskabsrum familiens behov? Mange bruger i dag garagen som praktisk multirum, men det er også et valg, som har væsentlig betydning for den samlede pris. Det kan også være, at I slet ikke har brug for carport eller garage.
Glem ikke haven
Husk at sætte penge af til etablering af have, særligt hvis I drømmer om mere end hæk og græsplæne. Måske kunne det være skønt med en stor terrasse, hvor I kan nyde sommerdagene?

Viden om nybyggeri
Nybyggede huse til salg
Vi sætter løbende nybyggede huse til salg over hele Danmark. Her kan du også få en idé om, hvad et nyt hus koster.
Sådan tegner vi det rigtige hus til jer
Vi bygger huse hver dag og har gjort det i årevis. Al den erfaring og viden om best practice bringer vi i spil, når vi tegner dit hus.

Skal vi mødes til en snak om mulighederne?
Så book et uforpligtende møde med en af vores byggerådgivere. Du behøver ikke have styr på det hele endnu. Vi brygger en kop kaffe, taler om jeres ønsker og finder ud af, hvordan Milton kan hjælpe jer med husdrømmen.
Book et personligt møde med en byggerådgiver
Går du med nybyggerdrømme? Så book et møde med vores byggerådgivere. Udover at vi sammen kan skræddersy dit drømmehjem, rådgiver vi også om køb af byggegrund.